Il Benetti Class 44M si colloca nel cuore del segmento dei superyacht dislocanti in composito tra i 40 e i 45 metri, con un’impostazione ingegneristica orientata alla crociera a lungo raggio e alla vivibilità residenziale. La lunghezza fuori tutto supera i 44 metri, con un baglio generoso che sfrutta in modo efficiente il limite dei volumi per ottimizzare la stazza lorda intorno a 470 GT. L’insieme coniuga una carena dislocante pura, pensata per regimi economici stabili, con un disegno esterno dalle proporzioni classiche, prua piena e ampie superfici vetrate continue per massimizzare la relazione visiva con il mare.
Missione operativa
L’obiettivo è fornire un bluewater cruiser in composito capace di autonomie oceaniche, con una piattaforma tecnica semplice da gestire, ridondante e accessibile, e con standard di comfort (acustico, vibrazionale e climatico) coerenti con un utilizzo intensivo stagionale. Il 44M è, di fatto, una “casa sull’acqua” per armatori che desiderano alternare Mediterraneo e Caraibi con traversate stagionali, mantenendo costi operativi e tempi di costruzione certi tipici del GRP.

Profilo del cantiere: storia, filosofia costruttiva, reputazione
Una tradizione industriale con approccio artigianale
Benetti è tra i riferimenti storici della nautica mondiale. La reputazione del marchio poggia su una continuità produttiva di decenni, capace di integrare processi industriali maturi con un’elevata cura artigianale. Le linee guida della filosofia costruttiva sono tre: affidabilità strutturale, eleganza senza tempo e personalizzazione controllata. Questo approccio consente di mantenere coerenza progettuale e qualità replicabile, pur lasciando spazio a varianti e scelte di stile su misura.
Qualità, processo e controllo
La costruzione in composito dei modelli Class è supportata da controlli qualità multilivello: analisi FEM per validare la rigidezza delle strutture primarie, verifiche dimensionali a step sulle fasi di laminazione e incollaggio, prove di pressione e tenuta per impianti idrici e HVAC, test vibrazionali su macchine e riduttori, e collaudi funzionali in banchina prima delle uscite in mare. La tracciabilità dei componenti e la gestione documentale delle manutenzioni facilitano audit tecnici, refit e aggiornamenti futuri.
Architettura navale e dimensioni
Geometrie principali
- Lunghezza f.t. (LOA): ~44,06 m
- Baglio massimo: ~9,1 m
- Pescaggio: ~2,3 m
- Stazza lorda: ~471 GT
- Carena: dislocante pura, ottimizzata per crociera economica
La distribuzione dei volumi è calibrata per contenere la variazione dell’assetto al variare dei consumi. Serbatoi principali sono disposti in prossimità del baricentro longitudinale per ridurre la traslazione del GM e mantenere invariata la risposta dinamica. La prua piena e la sezione maestra ampia migliorano la portanza volumetrica a basse velocità e mitigano i colpi sull’onda corta tipica del Mediterraneo, mentre il bordo libero adeguato garantisce sicurezza e asciuttezza di coperta.

Stabilità e comfort dinamico
Il metacentro trasversale risulta adeguato per consentire periodi di rollio più lunghi e meno energici; la geometria della sezione immersa evita eccessive accelerazioni laterali, a vantaggio del comfort sensoriale. Stabilizzatori a pinna zero-speed lavorano in sinergia con la forma di carena: l’obiettivo è garantire livelli di comfort consistenti sia in navigazione sia all’ancora, con consumi ausiliari contenuti.
Materiali e criteri costruttivi
Scafo e sovrastruttura
Scafo e sovrastruttura sono in GRP con anime a cellula chiusa e tessuti multiassiali. I piani alti, soggetti a vincoli di massa e inerzia, prevedono rinforzi in fibra di carbonio per aumentare la rigidezza flessionale e torsionale riducendo il peso. Le giunzioni scafo-coperta sono dimensionate per trasferire i carichi senza punte di tensione locali, con un’attenzione particolare alle zone di concentrazione (piedritti finestrati, basi tralicci antenne, supporti di sovrastruttura).
Interni strutturali e pannellature
La filosofia box-in-box per le cabine prevede contropannellature disaccoppiate, telai tecnici e giunti elastici in corrispondenza degli attraversamenti impiantistici. Il risultato è un miglioramento dell’isolamento acustico, una riduzione della trasmissione vibrazionale e una maggiore facilità di manutenzione grazie all’accessibilità modulare di cavi e tubazioni. Le finiture privilegiano legni naturali, pietre alleggerite su honeycomb e rivestimenti tessili tecnici ad alto assorbimento acustico.

Apparato motore, propulsione e trasmissione
Configurazione tipica
- Motori principali: 2 × V12 diesel di classe ~1400 hp ciascuno
- Trasmissione: linee d’asse con riduttori e eliche a passo fisso ottimizzate
- Thruster: prua e poppa elettrici ad alta coppia
- Timoneria: servoassistita con ridondanza e wing stations
La scelta delle linee d’asse riflette una priorità: massima prevedibilità, efficienza meccanica e manutenzione semplificata per missioni di lungo raggio. La coppia erogata dai V12 consente di mantenere in scioltezza la crociera economica a 10–11 nodi e di sostenere andature più brillanti quando necessario, senza penalizzare eccessivamente i consumi.
Prestazioni operative
Velocità, autonomia, consumi
- Velocità massima: ~15 kn
- Velocità di crociera: ~11 kn
- Autonomia: ~4.000–4.100 nm @ 11 kn
- Capacità carburante: ordine di grandezza ~60.000 l (in funzione della configurazione)
La curva potenza–resistenza cresce regolare fino a 13–14 nodi, consentendo una gestione fine del compromesso tempo/consumo. Le pressioni dinamiche su carena e appendici restano entro valori che non innescano fenomeni di risonanza fastidiosi per gli interni; l’onda di scia è contenuta, indice di efficienza idrodinamica e di buon comfort generale.
Rumorosità e vibrazioni
Supporti elastici per macchine e riduttori, tubazioni su selle antivibranti e percorsi d’aria HVAC su tratti fonoassorbenti concorrono a un ambiente interno silenzioso. In crociera lunga, i livelli fonometrici nelle cabine risultano comparabili a quelli di una residenza urbana di alta qualità, favorendo sonno e attività quotidiane anche durante i trasferimenti.
Sistemi di bordo: elettronica, automazione, HVAC ed energia
Navigazione e controllo
La plancia integra suite multifunzione con radar, ECDIS, AIS di classe professionale, ecoscandaglio, log, sensori vento e telemetria impianti. La logica HMI privilegia schermate contestuali per fasi (manovra, crociera, notturna, ancoraggio) e ridondanza degli input. L’automazione supervisiona serbatoi, pompe, gruppi elettrogeni, carichi di bordo, bilanciamenti e allarmi, con reportistica storica utile alla manutenzione predittiva.

Domotica e rete
Backbone ethernet con segmentazione VLAN separa traffico di controllo, AV/IT e rete ospiti. Connettività multi-wan aggrega 4G/5G e collegamenti satellitari per garantire continuità di servizio in navigazione oceanica. I sistemi AV distribuiti permettono scenari differenziati per ambienti interni ed esterni, con gestione centralizzata e interfacce locali semplificate.
Energia e HVAC
Generatori in parallelo intelligente gestiscono i carichi in funzione della domanda reale, con logiche di peak shaving supportate da banchi batterie di servizio. Gli impianti HVAC impiegano compressori a inverter per modulare la potenza termica, riducendo consumi e cicli di accensione.
Design esterno, layout e architettura degli spazi
Esterni: forma e funzione
Le linee esterne risultano tese e pulite: finestrature a tutta altezza alleggeriscono visivamente i volumi, murate ribassate creano affaccio diretto sul mare nelle aree sociali, mentre la prua piena conferisce personalità marittima e riserva volumi preziosi al ponte principale. Le attrezzature di coperta sono integrate per ridurre discontinuità aerodinamiche e garantire ordine funzionale.
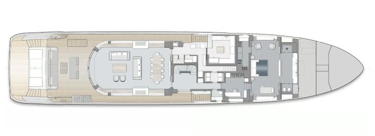
Organizzazione dei ponti
- Ponte principale: salone panoramico, pantry di servizio, cucina professionale, day-head; suite armatoriale full-beam a prua con studio, cabina armadio e bagno di rappresentanza.
- Ponte inferiore: quattro cabine ospiti (VIP + doppie convertibili), locale lavanderia, area equipaggio con accessi separati, beach area e locali tecnici di poppa.
- Ponte superiore: sky lounge con vista a 270°, ampia area esterna coperta per dining, plancia superiore; lay-out opzionale con VIP sul ponte.
- Sun deck: superficie ampia e modulare per prendisole, zona bar, area wellness e predisposizioni idromassaggio.



Materiali e illuminazione
Legni caldi, pietre alleggerite, metalli satinati e tessili tecnici fonoassorbenti definiscono un linguaggio contemporaneo e senza eccessi. L’illuminazione combina luce indiretta e spot accent per valorizzare i volumi; le temperature colore regolabili (circa 2700–4000 K) consentono transizioni rapide tra atmosfere conviviali e luce funzionale.
Vita a bordo e comfort
Alloggi e funzionalità giornaliera
La configurazione standard prevede 10 ospiti in 5 cabine, con armatoriale sul ponte principale e quattro cabine al ponte inferiore. Su richiesta è disponibile un layout a 6 cabine (12 ospiti) con VIP aggiuntiva sul ponte superiore. I bagni privilegiano soluzioni full-beam, docce walk-in e ventilazione ottimizzata. La cucina di bordo è strutturata come una vera postazione professionale, con celle dedicate e piani igienici a manutenzione rapida.
Aree sociali e beach area
La zona di poppa integra il beach club con accessi acqua sicuri e spazio per tender e water toys. Il ponte superiore offre al fresco dining con affacci panoramici, mentre il sun deck è pensato come piattaforma trasformabile per relax, fitness e intrattenimento serale. La rete AV/IT esterna permette proiezioni, musica e connettività senza interferire con i sistemi di bordo.

Equipaggio e percorsi servizio
L’equipaggio (8–9 unità tipiche) dispone di cabine conformi MLC, dinette e lavanderia dedicate, nonché di percorsi tecnici che consentono movimenti invisibili durante il servizio. La sala macchine, luminosa e ben ventilata, privilegia accessi ampi a filtri, valvole, quadri elettrici e scambiatori per ridurre i tempi delle operazioni quotidiane.
Prove in mare e comportamento
Assetto e risposta
In accelerazione il 44M mantiene un assetto composto, con prua che sale in maniera misurata e scia controllata. La timoneria restituisce una risposta prevedibile, con margini di correzione ampi nelle manovre di ingresso/uscita da rada e nei passaggi stretti. La combinazione di pinne stabilizzatrici e distribuzione dei pesi mitiga rollii e pitch su onda corta, mantenendo stoviglie e arredi stabili.
Comfort sensoriale in navigazione
La rumorosità percepita in salone e nella suite armatoriale si mantiene su livelli da residenza di pregio, consentendo conversazioni a voce naturale, riunioni e attività di intrattenimento anche durante trasferimenti di più ore. Vibrazioni su piani di calpestio e arredi sono limitate da supporti elastici e corretta posa di elementi flottanti.
Gestione, manutenzione e operatività
Manutenzione ordinaria
Gli spazi tecnici favoriscono ispezioni rapide e interventi programmati. La disponibilità globale di ricambi per i gruppi propulsivi e per i principali marchi di componentistica riduce i tempi di fermo. Il layout della sala macchine facilita l’accesso a filtri, separatori, pompe e valvole, mentre i percorsi aria sono dimensionati per mantenere temperature e ricambi entro specifiche anche in climi caldi.
Efficienza stagionale
Il profilo dei consumi a 11 nodi, unito alla capacità serbatoi e alla desalinizzazione ad alto rendimento, consente stagioni lunghe con rari rifornimenti. Sistemi di telemetria e monitoraggio remoto forniscono allo yacht manager dati utili per pianificare soste, programmare ricambi e tracciare i KPI di esercizio (ore gruppi, cicli HVAC, consumi acqua).
Mercato e concorrenza
Posizionamento e valore
Il Benetti Class 44M presidia la fascia alta dei composite displacement yacht 40–45 metri. Il valore percepito deriva dall’equilibrio tra volumi, autonomia reale, qualità degli interni, robustezza impiantistica e solidità del brand. Il prezzo, coerente con il posizionamento premium, riflette processi controllati, ampiezza di personalizzazioni e una rete di assistenza internazionale consolidata.
Competitor diretti
- Sanlorenzo 44 X-Space: approccio explorer-inspired, forte accento funzionale, materiali diversificati; volumi importanti con filosofia più tecnica.
- Azimut Grande 44M: linguaggio di design spinto verso il contatto col mare, soluzioni lifestyle marcate, impostazione in parte sovrapponibile sulle autonomie.
- Modelli interni alla gamma con taglio stilistico differente (impronta heritage o panfilo classico) per armatori più affezionati alla tradizione formale.
Nel confronto incrociato, il 44M spicca per coerenza marittima, cura dell’impiantistica e capacità di garantire comfort residenziale con consumi ragionevoli alle velocità di progetto. È una “via italiana” al long range in composito, meno concentrata sull’effetto scenico e più sulla qualità d’uso continuativo.
Trend del settore
Tre le direttrici principali: aumento dei volumi entro limiti dimensionali fissi, crescita dell’autonomia con comfort termico/sonoro da residenza, e digitalizzazione dei sistemi per ridurre costi e down-time. Gli armatori più giovani valorizzano sostenibilità percepita, materiali sinceri e spazi funzionali, privilegiando esperienze e fruibilità rispetto a soluzioni estetiche estreme.
Clientela target
- Armatori privati che intendono vivere a bordo per periodi estesi con famiglia e ospiti, alternando teatri di crociera.
- Operatori charter di alta gamma che puntano su volumi, suite sul main deck, beach club e servizio discreto.
- Corporate hospitality e rappresentanza per eventi e relazioni, con ambienti eleganti e infrastruttura AV/IT adeguata.
Ingegneria del comfort e della sicurezza
Illuminotecnica e acustica
Il lighting design evita abbagliamenti in plancia e negli spazi di passaggio; la distribuzione dei corpi luminosi crea scenografie sobrie che accentuano profondità visiva. Le superfici assorbenti sono integrate nelle boiserie per migliorare l’intelligibilità del parlato e ridurre il riverbero, specie nei saloni ampi con vetrate a tutta altezza.

Sicurezza attiva e passiva
Compartimentazioni, porte tagliafuoco, watermist in sala macchine, monitoraggio gas e fumi con soglie multiple e vie di fuga chiaramente segnalate concorrono alla sicurezza generale. Le procedure di emergenza, integrate nell’automazione, consentono check rapidi e attivazione di scenari dedicati (blackout, incendio, allagamento).
Case study operativi
Traversata intercontinentale
Su rotta Atlantica a 11 nodi, il profilo di carico dei generatori alterna fasi di funzionamento in parallelo e silent mode supportata dai banchi batterie durante soste e notte, bilanciando comfort e consumo. I serbatoi principali, ben centrati, riducono la variazione di assetto lungo la missione, preservando comfort e prevedibilità.
Stagione charter nel Mediterraneo
La configurazione interna permette turn-around rapidi tra imbarchi, con lavanderia e cambusa dimensionate per carichi elevati. La beach area sostiene un’offerta water toys completa, mentre i percorsi equipaggio garantiscono servizio discreto anche con ospiti a bordo per eventi serali.
Sintesi critica e posizionamento
Punti di forza
- Autonomia e marinità da vero long range in composito.
- Volumi e layout razionali con suite armatoriale sul main deck.
- Impiantistica ordinata, accessibile e ridondante.
- Comfort sensoriale elevato (acustica, vibrazioni, clima).
- Eleganza misurata con superfici vetrate coerenti e proporzioni classiche.
Aree di attenzione
- Velocità massima coerente con missione dislocante, non “fast commuter”.
- Controllo rigoroso dei pesi nei piani alti durante personalizzazioni estese.
- Profilazione accurata dei carichi per sfruttare al meglio generatori e batterie.
Il risultato è un superyacht che privilegia uso reale, affidabilità e qualità dell’abitare a bordo, offrendo un equilibrio particolarmente riuscito tra efficienza, comfort e prestigio del marchio.
Dati tecnici riassuntivi
- LOA: ~44,06 m
- Baglio: ~9,1 m
- Pescaggio: ~2,3 m
- Stazza lorda: ~471 GT
- Motori: 2 × V12 diesel ~1400 hp ciascuno
- Trasmissione: linee d’asse, eliche a passo fisso
- Velocità max: ~15 kn
- Crociera: ~11 kn
- Autonomia: ~4.000–4.100 nm @ 11 kn
- Carburante: ~60.000 l (ordine di grandezza)
- Acqua dolce: ~8.000 l
- Ospiti: 10 (5 cabine), opzione 12 (6 cabine)
- Equipaggio: 8–9
- Stabilizzazione: pinne attive zero-speed
Approfondimento iconografico



Prospettive future e direzione del cantiere
Composito evoluto e digitalizzazione
È verosimile un’evoluzione verso un uso sempre più esteso di rinforzi mirati in carbonio, sandwich a densità variabile e pannellature interne alleggerite, con strumenti digitali per la manutenzione predittiva (fleet analytics, digital twin di apparati chiave). L’obiettivo resta la riduzione dei costi d’esercizio e l’aumento della disponibilità tecnica stagionale.
Efficienza d’esercizio
Gestione energetica sempre più fine, conversioni di banchina evolute e profili HVAC intelligenti ridurranno ulteriormente rumorosità e consumi in rada. L’attenzione alla sostenibilità d’esercizio non è un vezzo, ma una leva concreta per estendere la fruizione e la qualità della vita a bordo, mantenendo alti standard di comfort.



